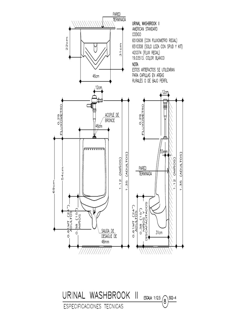
American Standard Washbrook Urinal 6501.010 Indoor Furnishing

Washbrook Urinal Rough In Specs. Urinal Spacing Dimensions This ultra-high-efficiency, low-consumption universal urinal operates in the range of 0.125 GPF - 1.0 GPF Chloramine-resistant EPDM seals • Adjustable tailpiece for rough-in flexibility • Can be installed left or right hand Model 6045.101 for 3/4" top spud urinals, 1.0 gpf

AMERICAN STANDARD WASHBROOK URINAL 3/4" TOP SPUD WALL HUNG .125 GPF TO
AMERICAN STANDARD WASHBROOK URINAL 3/4" TOP SPUD WALL HUNG .125 GPF TO from www.equiparts.com

Chloramine-resistant EPDM seals • Adjustable tailpiece for rough-in flexibility • Can be installed left or right hand Model 6045.101 for 3/4" top spud urinals, 1.0 gpf Washbrook Urinal 6501.010 plumbing product pdf manual download

AMERICAN STANDARD WASHBROOK URINAL 3/4" TOP SPUD WALL HUNG .125 GPF TO

Choose a manual- or Selectronic® sensor-operated flush valve that suits your budget and water usage requirements. Features include a flushing rim and washout flush action for effectiveness, extended sides for privacy, and EverClean® surface that stays cleaner, longer. WASHBROOK® FloWise® UNIVERSAL URINAL VITREOUS CHINA WITH EVERCLEAN® Vitreous china Permanent EverClean® surface inhibits the growth of stain and odor causing bacteria, mold and mildew on the surface High Efficiency, Low Consumption

AMERICAN STANDARD ALLBROOK URINAL 3/4" TOP SPUD 1.0 GPF Equiparts. Features include a flushing rim and washout flush action for effectiveness, extended sides for privacy, and EverClean® surface that stays cleaner, longer. This ultra-high-efficiency, low-consumption universal urinal operates in the range of 0.125 GPF - 1.0 GPF

AMERICAN STANDARD WASHBROOK URINAL 3/4" TOP SPUD WALL HUNG .125 GPF TO. Washbrook® 1.0 gpf Washout Urinal System 6501.511 1.0 gpf Exposed Top Spud Urinal and Manual Piston-Type Urinal Flush Valve Choose a manual- or Selectronic® sensor-operated flush valve that suits your budget and water usage requirements